Not all urban designers
are the same
                            Urban design is a misused term, often borrowed by other specialists as an add-on to their core service. At V2i, we believe urban design is its own specialist skill. In fact, the experience of our core staff spans more than 20 years specifically in the project visioning, master planning and detailed urban design of leading projects throughout Australia and overseas.
From large scale new city developments and integrated lifestyle resorts, through to urban mixed-use developments, our extensive experience means that we understand the value of good design and can help you to deliver and add value to your project.
From vision 
to implementation
                            When we start something, we want to see it through to the end. We also know that having a vision is one thing, but getting it onto the ground is what counts. We understand what it takes to create great places and communities. From years of project experience throughout the world we have developed a specialised design process that extends from project visioning through to detailed urban design and marketing including:
- Project visioning
- Site analysis
- Concept design
- Structure planning
- Detailed urban design and documentation
- Design guidelines
- Design facilitation + consultant coordination
- Presentations + 3d visual communication
A world of experience
The experience of our urban design team extends to projects throughout many parts of the world. Whilst our studio is based on the Gold Coast, our current list of clients and projects has us providing a lead urban design role for projects throughout Australia and in Asia, South Africa and the UAE. Each project, with its own unique requirements and design opportunities.
The knowledge and skills that we develop through this diverse experience is what makes us different and gives us a fresh approach to urban design. And we bring this experience to you and your project.
Projects - Australia
 
                                    
                                    
                                    
                                    
                                    Burnett Lane Redevelopment
Brisbane, Qld
Generation of concept architectural / streetscape study and 3d visualization for laneway revitalization in association with Brisbane City Council.
 
                                    
                                    
                                    
                                    
                                    
                                    Bond Uni Sports Precinct Redevelopment
Gold Coast, Qld
Generation of urban design concepts for upgrade of existing sports precinct and university interface.
 
                                    
                                    
                                    
                                    
                                    
                                    
                                    
                                    
                                    
                                    Waterway Gardens
Townsville, Qld
Master plan and detailed urban design for a 850ha new town community of 5000+ and dwellings, mixed use town centre, schools, neighbourhood centres and extensive parkland and recreational trails.
 
                                    
                                    
                                    
                                    
                                    
                                    
                                    Alfredton West
Ballarat, Vic
Project visioning, master planning and detailed urban design for a 220ha integrated residential community of 2000 dwellings and mixed-use town centre.
 
                                    
                                    
                                    
                                    
                                    
                                    Caprice
Sunshine Coast, Qld
Concept design, detailed CAD design and streetscape / lot / housing configuration study for 90 dwelling integrated small lot housing project with central parkland and recreation club.
 
                                    
                                    
                                    
                                    
                                    
                                    
                                    
                                    
                                    
                                    Stonecutters Ridge
Sydney, NSW
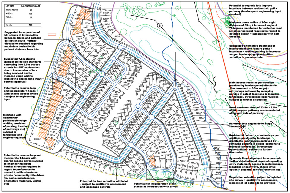
Master plan and detailed urban design for a 1000 dwelling residential community set within 18 hole Greg Norman design championship golf course.
 
                                    
                                    
                                    
                                    
                                    
                                    
                                    
                                    
                                    
                                    
                                    Coomera Waters Village 
and Resort
                                    Gold Coast,QLD
Master plan and detailed urban design for a 400ha eco-residential community and marina village with over 50% of site retained as open space.
 
                                    
                                    
                                    
                                    
                                    
                                    
                                    
                                    
                                    
                                    Brookwater
Brisbane, QLD
Master plan and detailed urban design for a 450ha residential community based around an 18 hole Greg Norman design championship golf course and bushland setting.
 
                                    
                                    
                                    
                                    
                                                                        
                                    
                                    
                                    The Vintage
Hunter Valley, NSW
Master plan and detailed urban design for a 260ha integrated resort residential community set within rural vineyard environs and an 18 hole Greg Norman design championship golf course.
 
                                    
                                    
                                    
                                                                        Harmony at Bramston
Cairns, QLD
Project visioning, master planning and 3d visualization for 280 ha mixed use and residential community.
Projects - International
 
                                    
                                    
                                    
                                    
                                    
                                    
                                    
                                    Nurana
Manama, Bahrain
Project visioning, master planning and concept architecture for 200ha mixed-use island community incorporating waterfront village, marina town centre and mixed residential.
 
                                    
                                    
                                    
                                    
                                    
                                    EOA Clubhouse Village
Johannesburg, South Africa
Detailed urban design and concept architecture for 7ha community village incorporating clubhouse, convenience shopping, health and recreation club, resort style lagoon pool and village green.
 
									
									
									
                                    
									
									
									
									
									
                                    Eye of Africa
Johannesburg, South Africa
Master plan and detailed urban design for 450ha residential community based around 18 hole Greg Norman design championship golf course.
 
                                    
                                    
                                    
                                    
                                    
                                    
                                    
                                    Jakarta Bay
Jakarta, Indonesia
Site review, structure planning and master plan for 16,750ha new city of 1.5 million people incorporating bayfront CBD, mixed use town centres, university, sports stadium, port and industry precincts.
 
                                    
                                    
                                    
                                    
                                    
                                    
                                    
                                    
                                    Hamriyah
Sharjah, UAE
Project visioning and master plan for 350ha community incorporating town centre, mixed use villages and extensive waterway and parkland setting in association with LDM Consulting.
 
                                    
                                    
                                    
                                    
                                    
                                    
                                    Creative City
Sharjah, UAE
Project visioning and master plan for 265ha community incorporating town centre, office parks and mixed residential within a ‘Garden City’ in association with LDM Consulting.
 
									
									
									
									
									
									
									
									
									
									
                                    BSD City
Jakarta, Indonesia
Master plan and detailed urban design for 800ha new city incorporating 70ha mixed use town centre, university, city sports stadium, botanic gardens and a range of other regional facilities.
 
									
									
									
									
									
									
									
                                    Manado Resort
Manado, Indonesia
Project visioning, master plan and detailed design for 280ha resort golfing community incorporating mixed use clubhouse village.
 
									
									
									
									
									
                                    Turtle Point
Sharjah, UAE
Project visioning and concept master plan for 60ha resort and residential community within eco-island setting.
 
									
									
									
									
									
									
									
                                    Keppel Land
Jakarta, Indonesia
Project visioning, master planning and 3d visualization for 280 ha mixed use and residential community.

 
                               
                               
                               
                               
                               
                            


